Wropo logo
Знаме на Кипър Кипър
Публикувайте реклама
  1. Начало
  2. Недвижими имоти
  3. Вили
Моля, имайте предвид, че Wropo работи като класифицирана платформа за реклами и не проверява рекламодателите или техните списъци. Вижте повече

Ние нямаме директни познания за нашите потребители, нито контролираме техните дейности. Избягвайте да изпращате пари предварително на хора, които не познавате. Винаги проявявайте предпазливост при онлайн транзакции и проверявайте информация, преди да продължите. Вижте по-малко

5 room Villa for sale in Paphos, Paphos District

3,399,000€

Вили, Paphos, IMG-0
Вили, Paphos, IMG-1
Вили, Paphos, IMG-2
Вили, Paphos, IMG-3
Вили, Paphos, IMG-4
Вили, Paphos, IMG-5
Вили, Paphos, IMG-6
Вили, Paphos, IMG-7
Превод: Знаме BG Оригинал

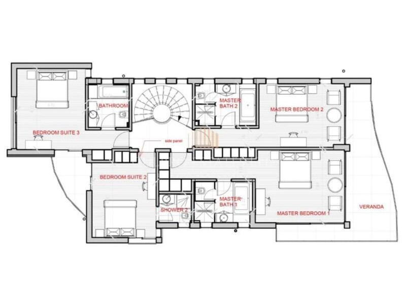
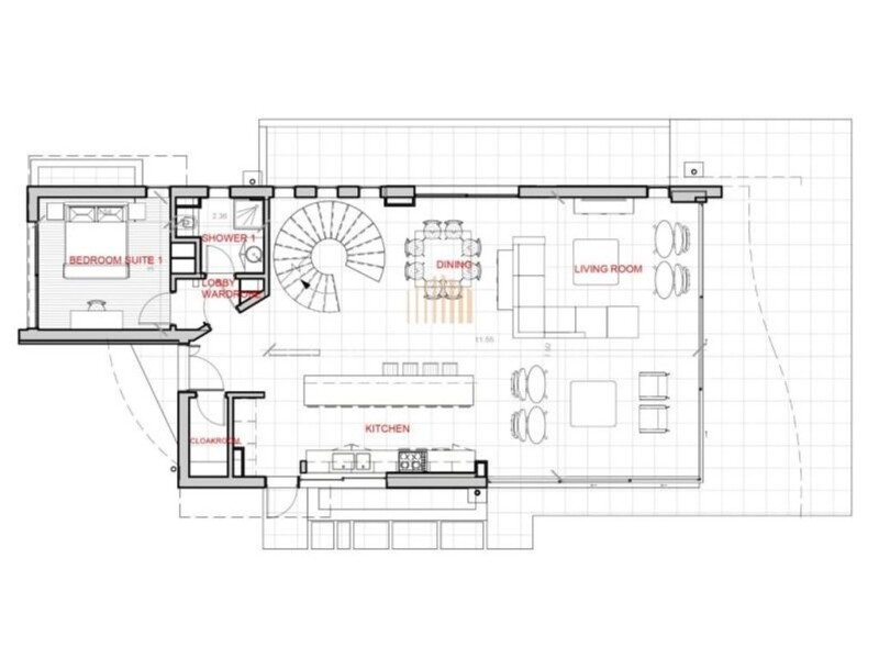
5 bedroom brand new villa superbly located on the coastline in a pristine area of picturesque Coral Bay, within walking distance to the 5 Star Coral Beach Hotel and Resort, a 10 minutes drive to the cosmopolitan Paphos area to the south east and the Akamas Nature Reserve to the north. Covered area: 263 m2 Covered verandas: 23 m2 Total covered area: 402 m2 Uncovered verandas: 25.5 m2 Lower Ground Floor: 134 m2 Plot area: 638 m2. The villa consists of: 5 bedrooms 6 bathrooms Comfortable living & dining area Contemporary Architecture Modern kitchen Swimming pool Sun patio Garden Pergola Underfloor heating PRICE: € 3.399.000 + VAT. Delivery: September 2020. The development will comprise of around 63 villas, many of them with private swimming pool and with direct access to the beach. The project will have a residents' clubhouse, private pools and gardens, large verandas and patios, ample covered parking and superior interior finishes.

Additional Property Information:
• Rooms: 5
• Bedrooms: 5
• Bathrooms: 6
• External size: 638 m²
• Size: 263 m²
• Exterior Amenities: Pool, Garden
• Reference: VIL_4163
• Year of construction: 2020

Цена: 3,399,000€
Whatsapp: Не
Категория: Вили
Тип: Професионалист
Град: Paphos
Регион: Пафос
Справка: CY-DD357B1079
Последна актуализация: преди 5 месеца
Посещения: 166
Avatar Bg

Обадете се сега, за да се свържете директно с продавача.

Още реклами
Villa for sale in Aphrodite Hills, Paphos, Paphos District

9

Villa for sale in Aphrodite Hills, Paphos, Paphos District

2,850,000€

Paphos

Недвижими имоти » Вили

Професионалист

преди 5 месеца

2 room  Villa for sale in Aphrodite Hills, Cyprus

9

2 room Villa for sale in Aphrodite Hills, Cyprus

530,000€

Paphos

Недвижими имоти » Вили

Професионалист

преди 5 месеца

5 room  Villa for sale in Paphos, Cyprus

5

5 room Villa for sale in Paphos, Cyprus

1,350,000€

Paphos

Недвижими имоти » Вили

Професионалист

преди 4 месеца

4 bedroom  Villa for sale in Káto Páfos, Paphos, Paphos District

9

4 bedroom Villa for sale in Káto Páfos, Paphos, Paphos District

2,650,000€

Paphos

Недвижими имоти » Вили

Професионалист

преди 5 месеца

6 bedroom  Villa for sale in Paphos, Paphos District

9

6 bedroom Villa for sale in Paphos, Paphos District

750,000€

Paphos

Недвижими имоти » Вили

Професионалист

преди 5 месеца

3 bedroom  Villa for sale in Paphos, Cyprus

9

3 bedroom Villa for sale in Paphos, Cyprus

964,000€

Paphos

Недвижими имоти » Вили

Професионалист

преди 5 месеца


Wropo logo
  • Градове
  • Региони
  • Държави
  • Политика за поверителност
  • Общи условия
  • F.A.Q.
  • Ценообразуване
  • Контакт

Wropo работи като класифицирана платформа за реклами. Ние не притежаваме, управляваме или гарантираме продукти или услуги, изброени от рекламодатели на трети страни.

© 2025 Wropo. Всички права запазени.

Изберете категория